
屋根塗装や屋根葺き替え工事では、屋根の面積によって必要な費用が大きく変わってきます。それは面積によって、必要な「材料」や「処分費」、「手間(人件費)」が変わってくるためです。
その際に気を付けたい事は、業者によって「見積もり記載の屋根面積」が変わってくることです。面積を多く計算されていた場合、ぼったくり被害に合う事もあります。
そのような事態を防ぐためにも、ある程度自分で面積を知っておくことが大事です。また、自分で求めることが出来れば、大体の相場費用もみえてくるメリットもあります。
そこで今回は、屋根の面積の求め方について、図面がある場合と無い場合に分けて解説していきます。
屋根の面積の求め方
屋根の面積の求め方は、建物の図面があるかないかで変わってきます。
図面が無い場合
図面が無い場合は、おおよその「投影面積」を計測して、そこから求める方法が一般的です。
メジャーなどを使って「投影面積」を出し「屋根の傾き」から簡易的に計算します。
ただしこの方法は、図面から求めるよりも正確性が下がるため注意が必要です。
図面がある場合
建物の図面がある場合には、「平面図」と「立面図」を使って正確に面積を求めることできます。
「立面図」から定規で計って出すこともできますし、「平面図」の寸法をみて投影面積から計算する方法もあります。
図面が無い場合の求め方
図面が無い場合の屋根の面積の求め方には、屋根の投影面積から求める方法があります。屋根の投影面積とは、建物を真上から見た場合に見える面積のことです。
<計算式>
屋根の面積=「屋根の投影面積」×「勾配伸び率」
投影面積の求め方
実際に、建物の外周を測る

①建物の辺を一周ぐるりとメジャーで計っていきます。
②建物のそれぞれの面の長さに軒の出を追加する
③その辺を掛けていくことで、面積(㎡数)が算出されます。
1階と2階部分の面積が違う場合は2階部分に合わせます。
軒の出は、下から目視で確認するか、ベランダから届く範囲で計測していきます。一般的には「45cm」程度の建物が多いですが、「60cm」や「90cm」といった軒の出の広い建物もあるので注意してください。
<参考計算方法>

例:建物長さ「7m」、軒出「0.5m」として、上記図の場合の投影面積の求め方は以下になります。
建物の辺が「7m」で軒先が「0.5m」場合は、「7m」に「0.5m」ずつ足すことで屋根の1辺が「8m」になります。
屋根投影平面積は屋根を真上から見た時の面積で、「8m×8m=64㎡」となります。
グーグルマップを使う方法

①グーグルマップの航空写真で、自宅を真上から撮影した写真を見る
②真上から見た写真から自宅の屋根の形状を確認
③グーグルマップの「距離を測定」という機能を利用して、屋根それぞれの辺の長さを測る
それぞれの辺の出た数字を掛けて、投影面積を算出していきます。
勾配伸び率
屋根の面積は、屋根の投影面積だけでは正確に求めることができません。屋根の傾きによって面積が異なるため、屋根の投影面積に「勾配伸び率」をかける必要があります。
勾配伸び率は、その勾配数によって数字が変わってきます。
【勾配伸び率一覧】
| 勾配 | 勾配伸び率 |
| 1寸 | 1.005 |
| 2寸 | 1.020 |
| 3寸 | 1.044 |
| 4寸 | 1.077 |
| 5寸 | 1.118 |
| 6寸 | 1.166 |
| 7寸 | 1.221 |
| 8寸 | 1.281 |
【勾配の見分け方】
図面が無い場合には、勾配を目視で判断するしかありません。
屋根の傾きを判断するには外観から見分けることになりますが、使用されている屋根材の種類でもおおよその判断が可能です。
トタンなどの緩勾配の場合は、「1~2寸」を使用する。屋根材がスレートや陶器瓦で並勾配の場合は、「3~5寸」、急勾配の場合は、「6~8寸」を使用するイメージです。
緩勾配:屋根の上を問題なく歩行できる
並勾配:屋根の上を専門家であれば気を付ければ歩行可能
急勾配:屋根の上を専門家でも歩行不可
一般的に屋根の形状は「切妻屋根」や「寄棟屋根」といった形が多いですが、その他にも「入母屋」や「陸屋根、片流」れなどの形状もあります。

屋根の面積は、「屋根を上からみた形が同じ」で、「辺の長さが同じ」、「屋根勾配が同じ」場合には、屋根形状が違ってもすべて同じとなります。
そのため、複雑な屋根形状であるからと言って、計算方法が増えることはありません。
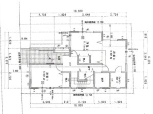
図面がある場合の求め方
建物の図面がある場合には、図面(立面図と平面図)を使って正確に屋根の面積を求めることができます。ここでは、図面を使った屋根の面積の求め方を解説していきます。


図面から屋根の長さを測る
100分の1スケールの場合
建物の図面が100分の1スケール場合には、立面図からそのまま定規を用いて屋根の長さを測ることができます。
100分の1とは、「1000mm:10mm」という大きさで、実際の実寸の長さ「1m(1000mm)」は、図面上の「1cm(10mm)」となります。


この流れで、図面の横の長さ(下辺「軒辺」と上辺「頂辺」)を測れます。
注意点として、屋根の斜辺の長さを正面でそのまま一緒に測ってはいけません。斜辺を測る場合は、正面から測るのではなく、横からみた図面から測って算出していきます。
測った数字を、三角形や台形などの形に分けて面積を求めていきます。
上記図の場合は台形となりますので、「(上辺∔下辺)×斜辺÷2」で面積が算出されます。
図面の縮図がわからない場合
図面の縮尺が分からない場合には、図面上に書かれた「勾配マーク」を探します。

一般的には、三角マークの縦と横に数字が書かれています。上記のように、三角マークに「10と4」と書かれている場合には、「4寸勾配」の屋根ということになります。屋根の勾配がわかれば正確な「勾配伸び率」がわかります。
立面図や平面図から計算した「屋根の投影面積」に勾配伸び率をかけることで屋根の面積を求めることができます。
平面図しか図面が無い場合
平面図しかない場合には、平面図から「屋根の投影面積」を計算していきます。
注意点として、立面図には軒の出を含めた屋根の長さが書かれていますが、平面図では軒の出はわかりません。
そのため、建物の長さに軒の出を追加する必要があります。軒の出の長さは、メジャーを用いて実際の長さを測る必要があります。
屋根面積を求める場合の注意点
屋根材の種類によって面積が変わる
実は屋根材の種類によって、「自分で求めた屋根の面積」と「見積もりなどに記載された屋根の面積」が異なることもよくあります。
今回、紹介した屋根面積の求め方は「平面的」な面積の求め方です。実際には屋根に使われている屋根材の種類によって塗装やリフォームする際の施工面積は異なります。
比較的に平らな「スレート屋根」、「金属系屋根」の面積であればそこまで大きな差が出ることはあまりありません。
ですが、「瓦屋根」、や「折半屋根」などの凹凸のある屋根材の場合には、求めた屋根の面積と異なることもありますので注意が必要です。
上屋根、下屋根、玄関上屋根も計算する
屋根と言っても2階や3階部分の天辺にある箇所だけではありません。
屋根の面積を求める際には、「上屋根」と「下屋根」の面積をそれぞれ求める必要があります。上屋根は、建物の最上部にある屋根で、下屋根は、上屋根以外の下の階にある屋根です。
下屋根があるかどうかで屋根の面積が大きく変わるため、しっかりと忘れずにチェックしておきましょう。
最後に
屋根の面積を自分で求めることで、お見積もりの「正確性の確認」や「相場費用を知りたい」場合にとても役に立ちます。
ですが、屋根材や屋根形状によって見積もりに記載されている「屋根工事の施工面積」とは異なることもあるので注意が必要です。屋根の凹凸や材料の端材分などによって施工面積が増えることがあるためです。
このような注意点を確認して、計算した屋根面積を上手く活用して、リフォーム工事にお役立てください。







